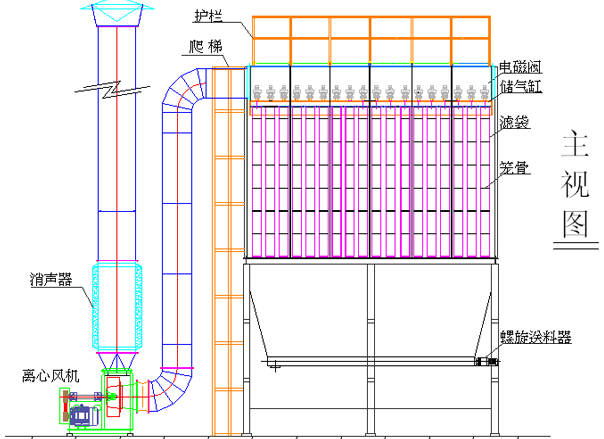
正常工作时,含尘气体由进风口进入灰斗,由于气体体积的急速膨胀,一部分较粗的尘粒受惯性或自然沉降等原因落入灰斗,其余大部分尘粒随气流上升进入袋室,经滤袋或滤筒过滤后,尘粒被滞留在滤袋或滤筒的外侧,净化后的气体由滤袋或滤筒内部进入上箱体,再由阀板孔、排风口排入大气,从而达到除尘的目的。含尘气体通过滤袋的净化过程,随着时间的增加而积附在滤袋或滤筒上的粉尘越来越多,增加了滤袋的阻力,致使通过滤袋或滤筒气体量逐渐减少。为使阻力控制在限定范围内,保证所需气体量通过由控制仪发出指令,按顺序触发各种控制阀开启脉冲阀,气包内的压缩空气瞬时地经脉冲阀至喷出管的各孔喷出,再经文氏管喷射到各对应的滤袋或滤筒内。滤袋或滤筒在气流瞬间反向作用下急剧膨胀,使积附在滤袋或滤筒表面的粉尘脱落,滤袋或滤筒得到再生。被清掉的粉尘落入灰斗,经排灰阀排出机体。积附在滤袋或滤筒上的粉尘被有周期性地脉冲喷吹清除,使净化的气体正常通过,保证除尘系统运行。
1.2工艺流程

1.3具体参数
|
型号 |
cc-5000 |
cc-10000 |
cc-15000 |
cc-20000 |
cc-30000 |
cc-40000 |
cc-50000 |
|
废气风量(m3/h) |
5000 |
10000 |
15000 |
20000 |
30000 |
40000 |
50000 |
|
装置功率(kw) |
7.5 |
11 |
22.5 |
30 |
45 |
56.25 |
75 |
|
烟囱尺寸(mm) |
400 |
550 |
750 |
850 |
950 |
1100 |
1200 |
|
设备尺寸(mm) |
1200×1200×4000 |
1600×1400×4500 |
2000×1500×5000 |
2500×1500×5500 |
3000×1500×5500 |
3200×1800×6000 |
3200×1800×6000 |
- 2025-10-13 > 江苏日成橡胶有限公司提高硅胶制品生产能力的技术改造项目
- 2025-10-09 > 优胜路东侧、光华路北侧(DN040318-01)地块土壤污染状况调查报告
- 2025-10-09 > 青洋中路西侧、劳动东路南侧(DN040316)地块土壤污染状况调查报告
- 2025-09-22 > 常州腾龙石化有限公司加油站建设项目环境影响评价报告表
- 2025-09-19 > 老人山二级专科医院项目环境影响评价报告表
- 2025-09-08 > 革新南河南侧、江南路西侧(HS100304-02)地块 土壤污染状况调查报告
- 2025-09-08 > 常州市新北区奔牛镇兴奔路以东、星港路以北(BL121011、BL121012)地块土壤污染状况调查报告
- 2025-09-05 > 中国石化销售股份有限公司江苏常州横东加油站改扩建项目竣工环境保护验收
- 2025-08-29 > 常州市吉益工具有限公司年生产300万把五金工具的生产项目竣工环境保护验收监测报告表
- 2025-08-27 > 江苏同力空调设备有限公司新建年产储液器45万台、气液分离器45万台、套管换热器10万台、高效罐换热器10万台、壳管换热器1.2万台、储能液冷机组5000台项目







